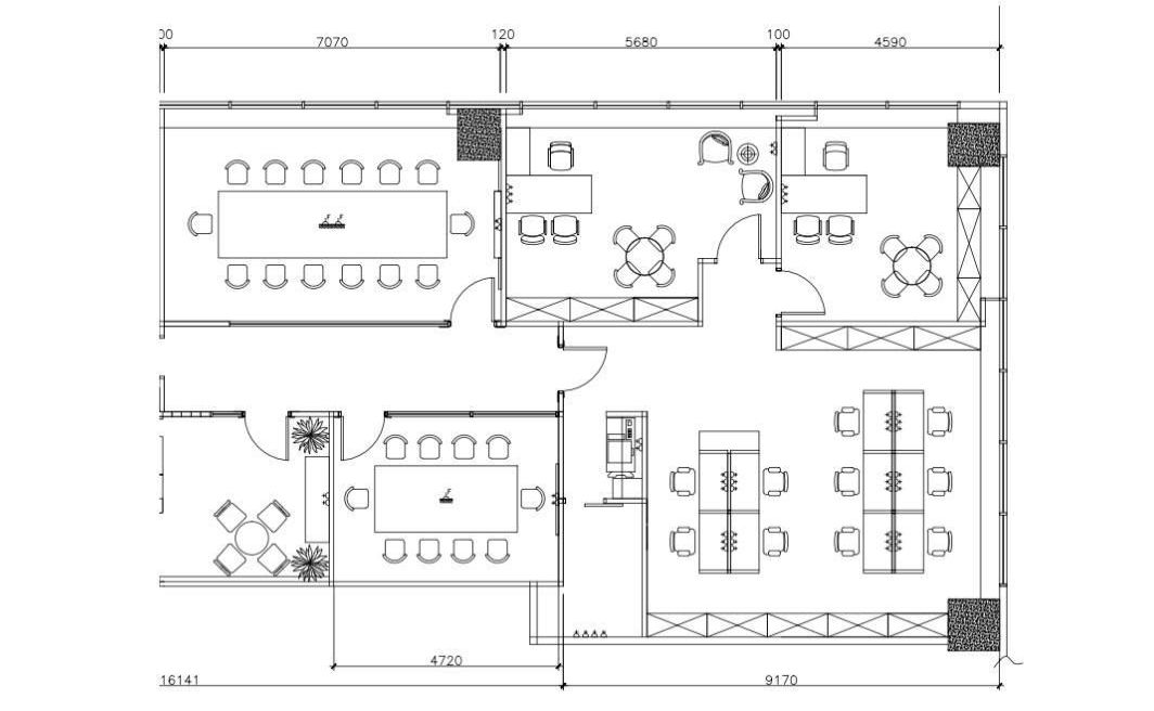
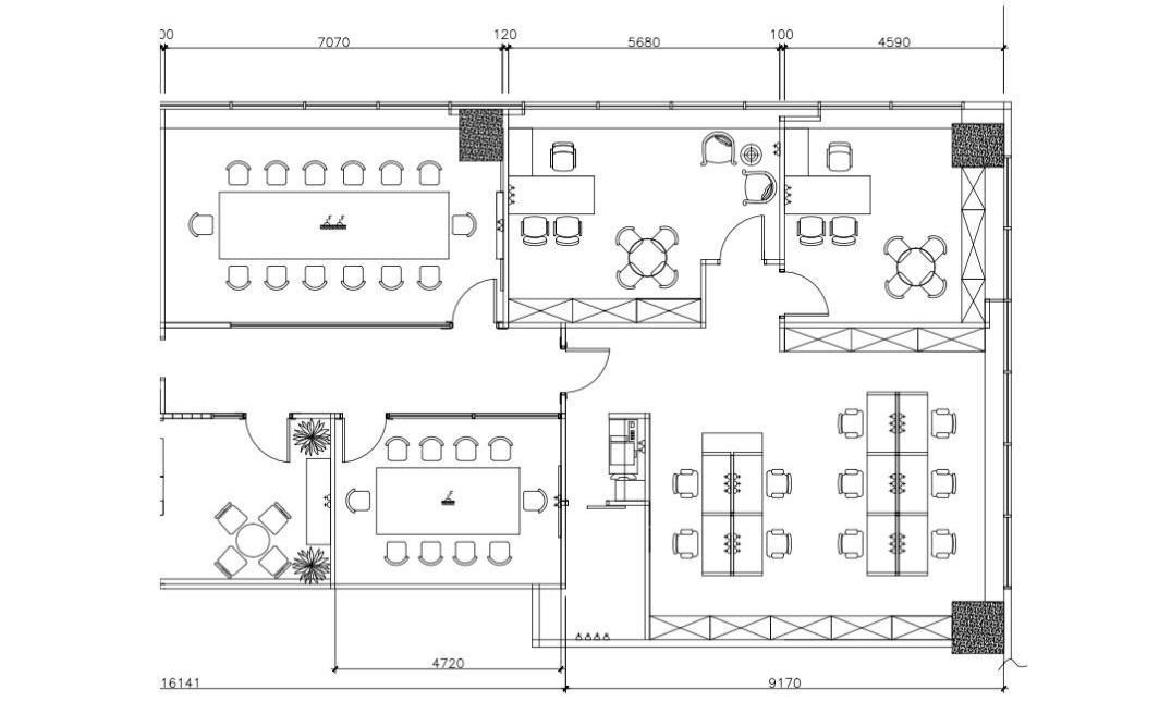
About This Property
Kondisi: semi furnished
Status: strata title
Property Overview
-
Type
Office
-
Purpose
For Sell/Rent
-
Furnished
Semi
-
BA (LB)
203,5 sqm
From Our Gallery
Location
Address:
Plaza Asia, Senayan, South Jakarta City, Jakarta, Indonesia
